
服務熱線
當前位置:首頁>媒體中心>產品百科>旋回破碎機的工作原理及其構造
來源: 發表時間:2015-05-19 15:56:46 點擊次數:【】
旋回破碎機的工作原理如圖3-1所示。動錐1與固定錐2之間形成的空間為破碎腔。電動機經二角皮帶輪3和圓錐齒輪副4,使偏心鈉套5轉動,而偏心軸套5又帶動動錐1繞破碎機中心線作旋擺運動,當動镕靠近固定維時,給入破碎胺內的物料受到擠壓和彎曲作用而被破碎,當動錐離開固定錐時,被破碎了的物料靠白重,從破碎腔底部排出。

與顎式破碎機比較,旋回破碎機是連續破碎物料,故它的生產效率比顎式破碎機高。
旋回破碎機的規格用給料口寬度B和排料門寬度e表示。給料口寬度B為1200mm,排料口寬度e為180mm的旋回破碎機表爾為:1200/180族回破碎機。
1. 900/150旋回破碎機的構造
900/150旋回破碎機的構造如圖3—2所示。它的機架是由機座14、中部機架10和橫梁9組成。它們彼此間用螺栓固緊。破碎機的機座14安裝在鋼筋混凝土基礎上。
旋回破碎機的工作機構是破碎錐32和固定錐(中部機架)10。中部機架10的內表面鑲有三行平行的錳鋼襯板11,最下面的一行襯板支承在機架下端凸出部分上,而上面一行則插入中部機架10上部的凸邊中。這樣,就能承受碎礦時由于摩擦而產生的向上的推力和破碎力的垂直分力。中部機架與襯板間必須用鋅合金(或水泥)澆鑄。
破碎錐32的外表面套有三塊環狀錳鋼襯板33,為了使襯板與錐體緊密接觸,在兩者間澆注鋅合金,并在襯板上端用螺帽8壓緊。在螺帽上端裝以鎖緊板7,以防螺帽松動。
破碎錐裝在主軸3l上。主軸的上端是通過錐形螺帽2、錐形壓套l、襯套4和支撐環6懸掛在橫梁9上。為了防止錐形螺帽松動,其L還裝有楔形鍵3。襯套4的錐形端支承在支撐環6上,而其側面則支承在內表面為錐形的襯套5上。破碎機運轉時,由于襯套4的下端與錐形襯套5的內表面部是圓錐面。故能保證襯套4沿支撐環6和錐形套5上滾動,從而滿足了破碎錐旋擺運動的要求。
主軸的下端插入偏心軸套22的偏心孔中,該孔對破碎機軸線成偏心。偏心軸套旋轉時,破碎錐的軸就以橫梁上的固定懸點為錐頂做圓錐面運動,從而產生破碎作用。

偏心鈾套是通過三角皮帶輪18、彈性聯軸節19,并由圓錐齒輪15,17帶動。
偏心軸套22在機座的中心套筒24的鋼襯套23中轉動,套簡利用四根筋板25與機座連接。在筋板25和傳動軸套簡的上面,敷設有錳鋼護板26和16,以免落下的礦石砸壞筋板和套筒。偏心軸套的整個內表面和偏心軸套比較厚的一邊約3/4的外表面(即承受破碎壓力的一邊),都澆鑄巴氏合金。為使巴氏合金牢固地附著在偏心軸套上,在軸套的內壁上布置有環狀的燕尾槽。
偏心軸套的止推軸承由三片止推圓盤組成。上面的鋼圓盤與固定在偏心軸套上的大圓錐齒輪連接在一起。它回轉時,就沿中間的青銅圓盤13轉動,而青銅圓盤又沿下面的鋼圓盤轉動。下面的鋼呵盤用銷子固定在中心套筒的上端,以防止其轉動。
為了防止礦塵進入破碎機內部的各摩擦表面和混入到潤滑油中去,在破碎錐下端裝有由三個具有球形表面的套環28,29和30構成的密封裝置。套環28用螺釘固定在破碎維上,套環29裝在中心套簡的壓益27的頸部.它們之間裝有骨架式橡膠油封,上部套環30自由地壓在套環29上。這種密封裝置比較可靠,礦塵不易透過各套環之間的縫隙進入破碎機的內部。
排礦口的寬度是用主軸上端的錐形螺帽2來調節的。調節時,首先用橋式起重機將主軸和破碎錐一起向上稍稍提起,然后,將主軸懸掛裝置上的螺帽2旋出或旋入,將排礦口調節到要求的寬度。這種裝置的調節范圍很小,而且調節時也很不方便。
旋回破碎機多半是在大三角皮帶輪18的輪鼓上安裝四個削弱斷面的保險銷軸,作為保險裝置。當破碎腔中混入非破碎物時,銷軸首先被剪斷而保護其他零件不受損壞。但是,這種保險方法很不可靠,易產生誤動作,效果不好。因此,目前已采用液壓保險裝置。
旋回破碎機用稀油和干油進行潤滑。旋回破碎機所需的潤滑油是由專用油泵站供給的,油沿輸油管從機座下蓋2l上的油孔流入偏心軸套的下部空間內,由此再沿主軸與偏心軸套之間的間隙,以及偏心軸套與襯套之間的間隙上升,潤滑這些摩擦表面后,—股油上升的途個與擋油環12相遇而流到圓錐齒輪;另一股油L升到偏心軸套的止推圓盤13上。潤滑油潤滑完各部件后,經排油管流出。破碎機傳動軸的軸承有單獨的進油管與排油管。
主軸的懸掛裝置是通過手動干油潤滑裝置定期用于油進行潤滑。
這沖破碎機具有保險裝置可靠性差,徘礦口調整不方便,而且調整范圍小等缺條。所以,目前我國已在旋回破碎機上采用了液壓保險和液用調整。
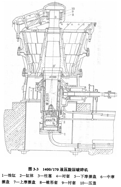
2. 1400/170液壓旋回破碎機的構造
針對旋回破碎機的保險裝置可靠性差、調整排礦口困難和破碎機卡鐵時很難取出等缺點。根據幾十年的實踐經驗和綜合分析,我國自行設計、自行制造出1400/170液壓旋問破碎機,其構造如圖3-3所示。

液壓旋回破碎機的結構與普通旋回破碎機的結構基本相同,不同的僅是在原基礎上加了一套液壓裝置和局部改變。因此,下面只介紹其不同部分。不同部分是在破碎機的下部,設有油缸1。油缸1是由缸體2、柱塞3、襯套4、下摩擦盤5、中摩擦盤6和上摩擦盤7等組成。上摩擦盤固定在主軸下端,下摩擦盤固定在柱塞3上,個摩擦盤的亡表面是球面,下表面是平面。破碎機工作時,中摩擦盤的上球面和下平面與上、下摩擦盤都有相對滑動。通過改變油缸內的油量即可調整排礦口的大小。
上部懸掛裝置有了很大簡化,從而使橫梁受力狀態得到很大改善(免受了破碎力的垂直分力和破碎圓錐白重對橫梁的影響)。為了防止主軸的磨損,在錐形套8內裝有銅襯套9。為了防止錐形套8在破碎機排除非破碎物后急速歸位時,使錐形套8上串,在錐形套8上設有壓蓋10。
液壓系統由單級葉片泵I、單向閥2、溢流閥3、截止閥4、單向節流閥7和蓄能器8等組成。如圖3-4所示。蓄能器起保險作用,內部充氣壓力一般為1.1MPa。單向節流閥起過鐵時動作快,復位時動作慢的作用,以減輕復憤時對破碎機的強烈沖擊。

在破碎機開動之前,首先要向油缸11內充油。充油的次序是:首先打開截止閥4a,關閉截止閥4b,啟動泵I。當油壓達到0.8MPa時,破碎圓錐開始上升,破碎圓錐升到上作位置之后,即可關閉截止閥4a,同時停止泵1,液壓系統的壓力仍保持0.8MPa,破碎機可開始工作。破碎機工作之后,由于破碎礦石的作用,液壓系統自然地保持與破碎力相平衡的油壓,一般為0.8—1.1MPa。
當非破碎物落入破碎腔時,造成破碎力劇增,系統油壓也隨之急增。這樣就破壞了蓄能器樂力大于系統油壓的關系,迫使油缸內的油擠入蓄能器中(此時油缸的油壓和蓄能器的氣壓均在1.1—1.5MPa之間波動,形成暫時的平衡)。在油缸內的油擠入蓄能器中的同時,破碎圓錐就下落,排礦門增大,非破碎物即可排出。非破碎物排出之后,由于破碎力急降,又破壞了暫時的平衡關系。由于單向節流閥的作用,較緩慢地逐步恢復到原來的平衡關系,破碎圓錐也較緩慢地日動復仿。
當非破碎物過大時,不能通過排礦門(液壓破碎機雖然能排除非破碎物,但也有一定限度),油壓可升至1.6MPa,此時由十電接點壓力表的作用,主電機可以自動停車。破碎機停車后,破碎腔內不僅卡有非破碎物,還存有大量礦石。處理這種情況,可采用放油卸載,充油加載的方法,使破碎圓錐多次上升、下降,即可排除破碎腔內的礦石和非破碎物。
當工作需要增大或減小排礦口時,可按下面程序進行:增大排礦口時,打開截止閥4a,4b,將油缸內的油排回油箱,破碎圓錐即可下落,達到需要后,關閉截止閥4a,4b。減小排礦口時,打開截止閥4a,啟動泵l,往油缸內充油,破碎圓錐即可上升,達到需要位置,關閉截止閥4a,問時停泵。
破碎機各種情況的油壓變化數值,取決于被破碎物料的性質。
上一篇:顎式破碎機主要參數的設計計算
下一篇:礦物的機械強度對磨碎的影響